Кран-манипулятор JAC N 120
Цена дана на шасси автомобиля в минимальной комплектации в Абакане.
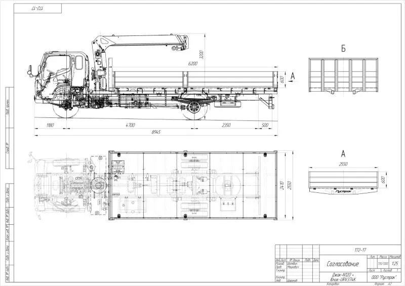
Кран-манипулятор автомобильный с модернизированной краноманипуляторной установкой UNIC 374 K (возможен монтаж других КМУ или другой модели серии 370) на базе шасси JAC N120 с алюминиевой бортовой платформой с габаритными размерами бортовой платформы – 6200х2550х600 мм.
Дополнительная комплектация доработки:
- быстросъёмные стойки на бортовой платформе;
- технологическое удлинение и усиление задней части рамы шасси;
- открытые профиля;
- такелажные кольца в платформе (6 шт.);
- монтаж КОМ с электро-пневматическим управлением;
- задние аутригеры – нет.
Автомобиль комплектуется: пластиковыми брызговиками, боковой защитой, противоподкатным брусом и светоотражающей маркировкой.
Приведение крюка в транспортное положение на КМУ с дополнительной опцией К (Юни-крюк):
Система Юни-крюк, позволяет осуществлять закрепление крюка в транспортное положение под самой стрелой, что облегчает операцию приведения КМУ в транспортное положение.
Комплектации
| Форт | Прикуриватель | стандарт |
| Радиоприемник+MP3, антенна, динамики | стандарт | |
| Пепельницы в боковых дверях | стандарт | |
| Полки в кабине над головами водителя и крайнего пассажира | стандарт | |
| Солнцезащитные козырьки водителя и пассажира | стандарт | |
| Ящик для инструментов | стандарт | |
| Зеркала заднего вида с подогревом | стандарт | |
| Рулевая колонка регулируемая по наклону и по вылету | стандарт | |
| Подножка с антискользящим покрытием | стандарт | |
| Задний стабилизатор поперечной устойчивости | стандарт | |
| Электростеклоподъемники | опция | |
| Центральный замок | опция | |
| Круиз-контроль | стандарт | |
| Кондиционер | опция | |
| Безопасность | Ремень безопасности водителя регулируемый по высоте | стандарт |
| Энергопоглощающий передний бампер | стандарт | |
| АБС | стандарт | |
| Дневные ходовые огни | стандарт | |
| Противотуманные фары | х | |
| Зуммер заднего хода | стандарт | |
| Горный тормоз | стандарт | |
| Электрическая регулировка передних фар | стандарт | |
| Адаптация для России | Топливный фильтр с подогревом и сепаратором | стандарт |
| Отопитель салона повышенной производительности | стандарт | |
| Морозоустойчивые резиновые детали | стандарт | |
| Свечи накаливания | стандарт | |
| Дополнительное утепление кабины | стандарт | |
| Москитная сетка и теплоизолционный экран на радиатор системы охлаждения | стандарт | |
| Нижняя защита двигателя, КПП | стандарт | |
| Закрытый аккумуляторный ящик | стандарт | |
| Нагревательный элемент масляного картера двигателя 220V | стандарт | |
| Нагревательный элемент топливной системы двигателя 220V | стандарт | |
| Предпусковой жидкостный подогреватель Webasto | опция | |
| Прочее | Запасное колесо | стандарт |
| Набор инструментов | стандарт | |
| Буксировочный крюк | стандарт | |
| Тахометр | стандарт | |
| Коробка отбора мощности | опция | |
| Электрический разъем для подключения тахографа | стандарт | |
| Проводка под тахограф | стандарт | |
| Тахограф | опция | |
| Спойлер | опция |
Технические характеристики
| Двигатель | |
| Марка двигателя | ISF3.8S5168((Евро-5) |
| Тип двигателя | Common Rail+SCR |
| Мощность двигателя, л.с. | 166 |
| Объем двигателя, см3 | 3760 |
| Максимальный крутящий момент | 592/1300-1700 |
| Трансмиссия | |
| Колёсная формула | 2х4 |
| Модель шасси | JAC N 120 |
| Коробка передач | |
| Тип коробки передач | механическая |
| Количество передач | 6 вперед, 1 назад |
| Шины и параметры колес | |
| Колесная база, мм | 4700 |
| Колея колес, мм | 1660/1800 |
| Дорожный просвет, мм | 218 |
| Минимальный радиус разворота, см | 1050 |
| Тормоза | |
| Тип тормозной системы | Двухконтурная пневматическая с 4-канальной ABS |
| Основные характеристики | |
| Грузоподъёмность, кг | 6,5 т |
| Емкость топливного бака, л | 210 |
| Полная масса автомобиля | 12000 кг |
| Грузоподъёмность шасси | 7690 |
| Гидроусилитель руля (ГУР) | есть |
| Максимальная скорость, км/ч | 110 |
| Шины, диски | 255/70R22.5 |
| Снаряженная масса шасси, кг | 4290 |
| КПП | WLY6G70 механическая Ⅰ:6.012, Ⅱ:3.292, Ⅲ:2.004, Ⅳ:1.367, Ⅴ:1, Ⅵ:0.789, R:5.395 |
| Монтажная длина, мм | 6200 |
| Габаритные размеры: длина/ширина/высота, мм | 8300×2345×2450 |
| Гарантия | 36 мес, нужно по таблице 36 мес или 200 000 км пробега (что наступит ранее) |
Для того чтобы оформить заказ, Вам нужно добавить товар в корзину, а затем заполнить форму, указав Ваши данные. После этого, к Вам придёт уведомление на e-mail-адрес, а менеджеры, представляющие компанию в Вашем регионе, свяжутся с Вами по телефону с целью уточнить и подтвердить заказ. Кроме этого, у Вас есть возможность оставить заказ по телефону (номера Вы найдёте в разделе «Контакты» на сайте).
Хотим обратить Ваше внимание, что все товары проходят предпродажную подготовку в обязательном порядке. Техника с двигателем представляется покупателю в собранном виде, если другое не было оговорено заранее. Подготовку и сборку осуществляют бесплатно. Навесное оборудование поставляют в разобранном виде. До начала работы попросите предоставить Вам инструкцию, а пристальное внимание уделите первичным работам по введению техники в эксплуатацию (обкатке двигателя, обтяжке болтов, замене масел после обкаточного цикла, обслуживанию воздушного фильтра).
Техника, представленная на нашем сайте прошла сертификацию для продажи на территории России. Когда техника доставляется курьером, мы производим её на работоспособность, и получаем консультацию о товаре.
Предоставляемые способы оплаты, доставки и самовывоза:- Оплата по безналичному расчёту. Для того чтобы мы выставили Вам счёт, обращайтесь к нам в телефонном режиме, оформляйте покупку на сайте, или оставляйте заявку по электронному адресу. Транспортные компании ПЭК, Деловые Линии доставят Вашу технику по нужному адресу. Также Вы можете воспользоваться нашей курьерской доставкой или самовывозом.
- Оплата наличными при получении товара или самостоятельном вывозе. Такой способ оплаты используется, если Вы заказываете товар с доставкой на дом или самовывозе в местах, где у нас есть филиал, а также в соседних регионах. Жителям Москвы рекомендуем ознакомиться с Постановлением 379-ПП от 22.08.2011 г. «Об ограничении движения грузового автотранспорта в г. Москва и признании утратившими силу отдельных правовых актов Правительства Москвы» с изменениями и дополнениями от 1 января 2017 года. Наш транспорт попадает под это постановление. Согласуйте свой визит по телефону или электронной почте. Оплата осуществляется только в одной валюте - российских рублях.
- Оплата картами VISA или MasterCard возможна в наших офисах. Обязательно согласуйте необходимость оплаты товара платёжными картами до его заказа. Хотим обратить Ваше внимание, что при оплате заказа платёжной картой банком-эмитентом, с клиента взымается комиссия в размере - 2,5 % от стоимости товара. Четвёртый возможный способ оплаты - оформление покупки в кредит или рассрочку, если Ваш визит осуществляется лично в наш офис. Оформление кредита займёт у Вас не более 30 минут. Мы сотрудничаем со следующими банками: «OTP», «Русский Стандарт», Почта Банк и Банк Хоум Кредит.
- По Москве и Московской области. Доставка среднегабаритного товара в пределах МКАД стоит 1000 руб. Доставка крупногабаритного товара в пределах МКАД обойдётся Вам в 2000 руб. Доставка крупногабаритного товара в пределах третьего транспортного кольца обговаривается в индивидуальном порядке. Цена за доставку по Московской области равна 1000 руб. + 35 руб. за километр в одну сторону. Расчёт производится от центрального склада в г. Москва.
- Доставка по Тульской, Рязанской, Калужской, Брянской, Ярославской, Курской, Воронежской, Белгородской, Тверской и Владимирской области производится со склада в г. Тула. Цена за 1 км равна 25 руб. в одну сторону. Цена за доставку может быть снижена при согласовании дня и времени доставки с нашей службой логистики. Доставка и загрузка техники по г. Санкт-Петербург (в пределах КАД) будет стоить 1000 + 25 руб./км от склада. Цена за доставку по Ленинградской, а также соседним областям (Псковской, Новгородской, Вологодской областей, а также Республики Карелия) стоит 25 руб./км в одну сторону. Цена за доставку может быть снижена при согласовании дня и времени доставки с нашей службой логистики.
- Доставка в регионы России, не указанные в выше представленных пунктах, осуществляется наёмным транспортом или транспортными компаниями от склада в г. Тула, г. Москва, или г. Санкт-Петербург.




